Hospital de la Santa Creu

Vic

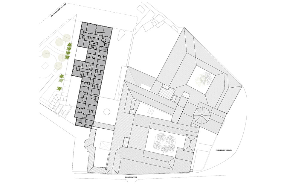
Realització d’un aixecament de plànols complet de tot el complexe de l’Hospital de la Santa Creu de Vic, així com un refós del conjunt de projectes que s’han dut a terme al llarg dels anys en aquests edificis.


Tipologia

Aixecament de plànols

Any

2014

Coautors

David Oliva / Eva Pérez - OLIVA PÉREZ ARQUITECTES

Localització

Rambla de l'Hospital, 52. Vic.

Client

Fundació Hospital de la Santa Creu

SP25 Arquitectura aixecament de plànols Hospital de la Santa Creu Vic
SP25 Arquitectura aixecament de plànols Hospital de la Santa Creu Vic
SP25 Arquitectura aixecament de plànols Hospital de la Santa Creu Vic
SP25 Arquitectura aixecament de plànols Hospital de la Santa Creu Vic
SP25 Arquitectura aixecament de plànols Hospital de la Santa Creu Vic